FOX Опубликовано 12 февраля, 2018 Опубликовано 12 февраля, 2018 вот счастливый человек, готов "для здоровья" работать! а вы в лестницах разбираетесь? строить не надо, надо посоветовать вариант, а то внесли самостоятельно маленькие изменения, и лестница нормально не встает в пролёт!
ПУШКАРЬ Опубликовано 12 февраля, 2018 Опубликовано 12 февраля, 2018 надо посоветовать вариант, а то внесли самостоятельно маленькие изменения, и лестница нормально не встает в пролёт! не вопрос) помогу чем смогу!!! нужны вводные )) для подпитки мозга... проём размеры высота от пола до "ВЕРХА ПЕРЕКРЫТИЯ" толщина перекрытия... конфигурация лестницы что конкретно изменили, ну и чему в итоге она мешает ... для размышлений на сей момент мне хватит,если не хватит запрошу ещё вводных
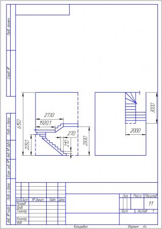
FOX Опубликовано 13 февраля, 2018 Опубликовано 13 февраля, 2018 итак: лестничный пролет 200 (ширина)*300 (длина)*615 (высота) см по полу 1-го этажа, 200*273 по полу второго этажа. высота до потолка первого этажа - 283 см, перекрытие - 28 см. А теперь проблемассссс: в середине стены (где предполагалась площадка межлестничная) стоит дверь! получается 50*100 (дверь)*50, высота двери 200см, от пола первого этажа над дверью на высоте 250 см окно. Сфотографировать вчера не получилось, но вроде бы понятно расписала, если какие-то расчёты упустила, померяем! Предполагалось изначально так как на фото, только заходить думали слева-направо
Paradox Опубликовано 13 февраля, 2018 Опубликовано 13 февраля, 2018 у соседей газоблок утёпленный пеноплексом... вот там откуда влага? Нельзя утеплять стены пеноплексом, он паровлагонепроницаем. Стена должна дышать. Влага из воздуха.. Удивительно, не правда ли?
FOX Опубликовано 13 февраля, 2018 Опубликовано 13 февраля, 2018 Нельзя утеплять стены пеноплексом, он паровлагонепроницаем. Стена должна дышать. Влага из воздуха.. Удивительно, не правда ли? да, ладно? вентиляция в доме? не? не слышал? :el: и, кстати, цитата взята из обсуждения дома не жилого!!! они в него заехали после отделки только (почти через 3 года)
Paradox Опубликовано 13 февраля, 2018 Опубликовано 13 февраля, 2018 Откуда влага на стенах, если не из воздуха? Они мироточат? Факт появления влаги на стенах свидетельствует о: 1. влага есть в воздухе. Она есть даже в воздухе пустынь. То, что дом не жилой говорит лишь о том, что эта влага не является продуктом жизнедеятельности человека; 2. в нежилом "экономноотапливаемом" доме созданы прекрасные условия для конденсирования влаги на стенах (точка росы, не? не слышал? :wink: ); 3. вентиляция не справляется. P.S. Вентиляция не предназначена для осушения воздуха. Проблему с влажностью решают осушением и кондиционированием (тепловые пушки к этому тоже не имеют отношения). А грибок между мембран в Вашем случае вполне может быть ошибок при их укладке. Мужу можно верить, не вопрос, но он может ошибаться.
ПУШКАРЬ Опубликовано 13 февраля, 2018 Опубликовано 13 февраля, 2018 лестничный пролет 200 (ширина)*300 (длина)*615 (высота) см по полу 1-го этажа, 200*273 по полу второго этажа. высота до потолка первого этажа - 283 см, перекрытие - 28 см. чуток пока не понял...вы написали лестничный пролёт 200-ширина 300-длинна 615-высота (вот это я не понял...) вы имели в виду вообще "колодец " куда будет вставать лестница высота от пола до потолка второго этажа-615? размер проёма в полу второго этажа я понял- 200 - ширина 273 - длинна высота всей лестницы должна быть не более 283(высота первого этажа)+28(толщина перекрытия) =313. лестница поворотная на 180 с переходной площадкой я правильно понял? пока нарисую эскиз в компасе предварительный правильно вас понял? если правильно вас понял, то ваша лестница должна быть с Г-образной переходной площадкой, площадка между окном и дверью во всю ширину 200см длинну пока не вычислил... ну надо бы хотя бы 100см если получится... потом она загибается на том же уровне до того момента,пока не будут вставать ступени по стандартным размерам, площадка будет крепится к двум стенам по наружным размерам и подпираться перилами (столбами) по внутренним размерам дверь получится как бы в туннеле... но свет будет проникать через перила лестницы
ПУШКАРЬ Опубликовано 13 февраля, 2018 Опубликовано 13 февраля, 2018 лестница пока получается только с забежными ступеньками 4 шт переходная площадка 100*190см примерно
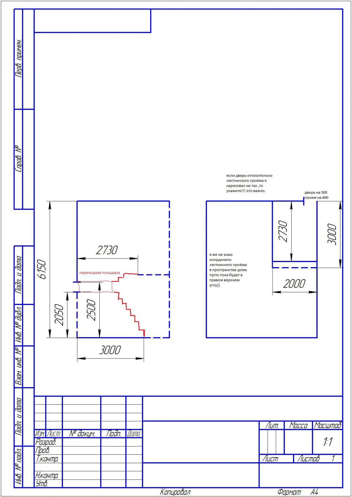
FOX Опубликовано 14 февраля, 2018 Опубликовано 14 февраля, 2018 Спас!!!! Интересный вариант, такой даже не рассматривали! высота от пола до потолка второго этажа-615? да, всё верно от пола первого этажа, до потолка второго этажа, именно "колодец" дверь получится как бы в туннеле... но свет будет проникать через перила лестницы освещение не суть, дверь в гараж и хозпомещения (пристрой к дому), засада в том, что сама дверь стандартная уличная 100 см и стоит ровно посредине ширины проема, т. е. получается 50*100 (дверь)*50 каркас лестницы (площадки) точно будет крепится к стенам, без подпорок, у нас там ещё перед дверью имеется люк в холодный погреб
ПУШКАРЬ Опубликовано 14 февраля, 2018 Опубликовано 14 февраля, 2018 каркас лестницы (площадки) точно будет крепится к стенам, без подпорок, у нас там ещё перед дверью имеется люк если лестница из металла, то возможно хватит жесткости для площадки при креплении только к стенам, если из дерева то подпорки(перила) будут необходимы, их можно упирать в край лестниц,и доводить до площадки,чтоб её подпереть,люк перед дверью не расположен под лестницей ,которая идет слева до переходной площадки? , засада в том, что сама дверь стандартная уличная 100 см и стоит ровно посредине ширины проема, т. е. получается 50*100 (дверь)*50 то есть она стоит ДО ЦЕНТРА лестничного проёма? или прямо по центру лестничного проёма? и открытие её в какую сторону? на лестницу или в гараж? и с какой стороны петли!!! и всё же я бы посоветовал бы вам лестницу из металла,обшитую или деревом или камнем или ламинатом... в общем тем чем вам нравится , её проще сделать прочнее и "воздушнее" из металла чем из дерева. не нужны будут опорные перила(столбы) да и лестница скрипеть будет намного меньше))) чем из массива дерева,главное при обшивке металла с деревом всё проклеивать "силиконовым герметиком" это применяют и в деревянной конструкции больше 50% всех будущих скрипов при таком монтаже не проявляется вообще
FOX Опубликовано 14 февраля, 2018 Опубликовано 14 февраля, 2018 однозначно металлический каркас, обшивать чем ещё думаем (по стилю дома камень больше подходит) люк перед дверью не расположен под лестницей ,которая идет слева до переходной площадки? нет, лестница не помешает или прямо по центру лестничного проёма? и открытие её в какую сторону? на лестницу или в гараж? и с какой стороны петли!!! прямо по центру, открывается из дома наружу (в гараж), петли слева
ПУШКАРЬ Опубликовано 14 февраля, 2018 Опубликовано 14 февраля, 2018 прямо по центру, открывается из дома наружу (в гараж), петли слева тогда этот вариант вам подойдет))
Misha Опубликовано 15 февраля, 2018 Опубликовано 15 февраля, 2018 Я в лестницестроительстве недавно, но, вот вопрос как то сразу появился при взгляде на чертеж - вам ходить по ней удобно будет? На мой (и не только) взгляд такой наклон уже крутоват, а высота ступеней высоковата. У вас 210 мм, а я пробовал сложить из газоблока высотой 200 - ходить можно, но хочется задирать ногу пониже. При этом у меня рост 170, у жены с её 155, даже не стал спрашивать удобно ли ей) Из инета вычитал параметры хорошей лестницы - наклон 30-40 градусов, высота ступени 170-180. Вот её сейчас и горожу. UPD А понял, у вас ограничение в габаритах, я то изначально расчитывал место под широкую и пологую лесницу.
FOX Опубликовано 15 февраля, 2018 Опубликовано 15 февраля, 2018 мы изначально тоже расчитывали на пологую, но аппетит приходит во время еды
ПУШКАРЬ Опубликовано 15 февраля, 2018 Опубликовано 15 февраля, 2018 мы изначально тоже расчитывали на пологую, но аппетит приходит во время еды это самое сложное... почти у всех заказчиков 80% наверное,так и происходит... по этому всем кто ко мне обращается ,советую год (пока фундамент стоит) хорошо подумать и выбрать один единственный,и не непоколебимый вариант ,только ОН будет самым верным и правильным во многих условиях. Только начинают вводить изменения,возникают проблемы,почему? отвечаю...мы живем не в богатом городе,и не у всех есть лишние деньги, по этому изначально почти все,строятся "без запаса" "без продумывания возможных дополнений" а чисто по "минимуму" ,объясняю всем знакомым, если вы решили сделать стройку по минимуму- это должен быть проект,который будет строится четко по плану!!! без дополнений потом!!! в общем я о чем... придумали дом... стройте его и не думайте о будущем..... быстрее и дешевле в нём заживёте. если он вам не понравится... поверьте.... дешевле построить новый... чем дополнить "минимум" до совершенства... как то так...
FOX Опубликовано 16 февраля, 2018 Опубликовано 16 февраля, 2018 да, это я выревела , чтоб через крыльцо не ходить за курами и в подсобку.... теперь вот мучаемся
Misha Опубликовано 16 февраля, 2018 Опубликовано 16 февраля, 2018 Ох уж эти куры, я жене сказал, что курицы живут в другой стороне огорода, пока меня не переубедили, а скоро и лесенка будет готова)
ПУШКАРЬ Опубликовано 16 февраля, 2018 Опубликовано 16 февраля, 2018 да, это я выревела , чтоб через крыльцо не ходить за курами и в подсобку.... теперь вот мучаемся в принципе я пока не наблюдаю мук)) всё у вас нормально ,то что лестница чуть не в "гост" поверьте - поживёте привыкните. у меня бабушка 80 лет в г.Лысьва , так у неё лестница не по "госту" с моего детства... и ничего)) лазает)) мораль- здоровее будете)) движение это жизнь да.... а лестницу бабкину я до сих пор помню... сколь раз я с нее наворачивался... и живой... и не поломанный... кстати может умишко то у меня с неё... того ... надо подумать!!!!
ПУШКАРЬ Опубликовано 18 февраля, 2018 Опубликовано 18 февраля, 2018 люди добрыя... помогайте... злой демон одолевает!!! даите волю моему мозгу для размышления... иначе всё... капут... вашему бер фруму... начну искать заряд для ума в других направлениях... ПОМОГИТЕ ПРОШУ!!!!
Kersh Опубликовано 18 февраля, 2018 Опубликовано 18 февраля, 2018 ...ПОМОГИТЕ ПРОШУ!!!! Ты чего, смешал кокаин с пивом и виски?!
ПУШКАРЬ Опубликовано 18 февраля, 2018 Опубликовано 18 февраля, 2018 Ты чего, смешал кокаин с пивом и виски?! нет... мне просто суда одного мало чтоб занять мой мозг))) мне нужна пища для размышления.... иначе мой разум погубит всё человечество... вы разве такого результата желаете? ау))) ПОМОГИТЕ!!!!!!
FOX Опубликовано 19 февраля, 2018 Опубликовано 19 февраля, 2018 На будущее (надо же заранее планировать), есть такое задание: спланировать помещения в хоз блоке, гараже и входной группе. ВВодные: пристрой угловой на две стены дома, длина стены - 10 м (дом квадратный), расстояние по дверям замерею завтра, с одной стороны будет пристрой (в нём надо разместить, гараж на 1 машину, кладовку, курятник, мастерскую небольшую) длина - 5 метров. Стена пристроя - вместо забора), Материал: кирпич 1 шт.+100 см утеплитель+0,5 кирпича облицовка, внутренние перегородки (0,5 или 1 кирпич - в качестве несущего варианта, высота 2,5 м. Пристрой входной группы: ширина 3-4 метра, длина по дому 10 метров+5 метров вдоль гаража. Надо разместить помещения (по порядку от входа с улицы вдоль стены гаража потом дома: вход с улицы, вольер собаке, холл (дверь в дом), кладовка для мешков с углём (вход в котельную), кладовка для огородных приблуд, и моя мечта маленькая банька (прямо сруб 2*2 прямо внутри дома) В инете даже похожего ничего нет
ПУШКАРЬ Опубликовано 19 февраля, 2018 Опубликовано 19 февраля, 2018 На будущее (надо же заранее планировать), можете рисунок сделать примерной планировки? можно от руки,расположение дома относительно пристроя ,гаража и дороги,и где двери из дома в пристрой. типа вид сверху вашего участка. для моего понимания пространства и что где у вас расположено
FOX Опубликовано 19 февраля, 2018 Опубликовано 19 февраля, 2018 Площадка и стена дома для гаража место пристроя входной группы (ближняя на снимке дверь котельной, следующая - вход в дом можете рисунок сделать примерной планировки? можно от руки,расположение дома относительно пристроя ,гаража и дороги,и где двери из дома в пристрой. типа вид сверху вашего участка. для моего понимания пространства и что где у вас расположено хорошо попробую
Рекомендуемые сообщения
Заархивировано
Эта тема находится в архиве и закрыта для дальнейших ответов.